Listing Provided Courtesy of Christine Bassett at Lacasse & Avery Real Estate Brokerage
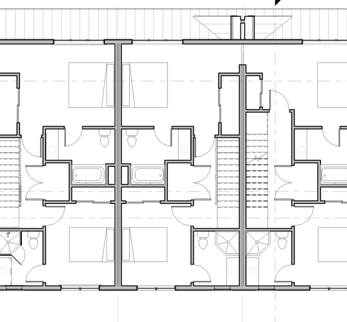
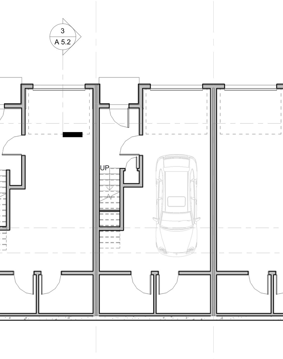
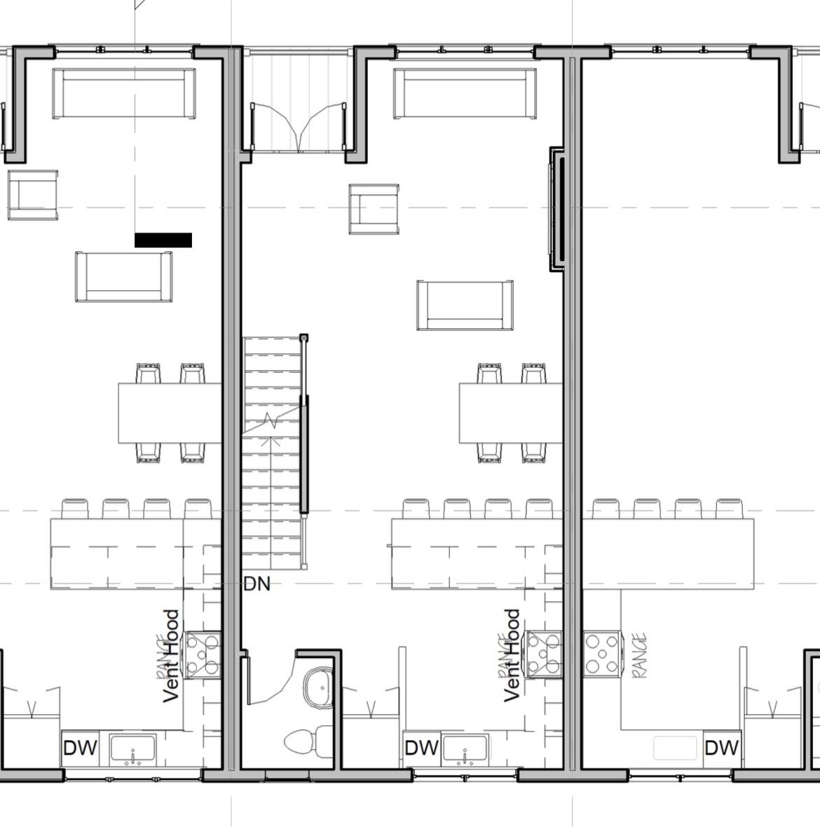
Welcome to Stonewall Corners, an exciting new-construction neighborhood of modern townhomes in the heart of Lakes Region fun and excitement! This great project features several different floorplans from approx. 1400 sq. ft 2-BR units up to 3-BR units with almost 1800 sq ft of living space. These homes are designed with modern life in mind, and represent a tremendous investment opportunity (on-site rental program)! The 2-bedroom units feature double en-suites, perfect for guests and family. The first level includes a lovely tiled foyer/mudroom, one car garage, and plenty of lockable storage. The main living space is open and comfortable. The kitchen features stainless steel GE appliances (or choose your own!), a spacious peninsula with seating, and a dining space as well. The living room is bright and cheery with access to a glass-railed deck. Upstairs are the paired en-suites. The larger units feature an additional en-suite! The exteriors are sharp and modern. The location can’t be beaten if you are looking for access to the Lakes Region’s 4-season amenities, minutes from Meredith, Gunstock, or The Weirs. Winnipesaukee marinas, and great shops/restaurants. This project has not yet been registered by the NH Consumer Protection Bureau of the AG’s Office, Dept. of Justice. Until such time as registration has been issued, only non-binding reservations may be accepted.Spring of ’26 occupancy, we’re building the nicest units 1st at pre-construction pricing so don’t wait.
Property Details
Price:
$499,900
MLS #:
5065006
Status:
Active
Beds:
2
Baths:
3
Type:
Condo
Listed Date:
Oct 9, 2025
Finished Sq Ft:
1,400
See this Listing
Schools
Interior
Appliances
Dishwasher, Microwave, Electric Range, Refrigerator, Electric Water Heater
Cooling
Central AC, Multi Zone, Mini Split
Electric
200+ Amp Service
Flooring
Ceramic Tile, Vinyl Plank
Heating
Multi Zone, Wall Units, Mini Split
Exterior
Association Amenities
Master Insurance, Landscaping, Common Acreage, Snow Removal
Driveway
Paved
Roof
Membrane, Asphalt Shingle
Sewer
Public
Utilities
Cable, Underground Utilities
Financial
Fee Includes
Landscaping, Plowing, Condo Association Fee
Map
Community
- AddressUNIT 49 STONEWALL CORNERS Way Laconia NH
- Condo AssociationSTONEWALL CORNERS
- CityLaconia
- Zip Code03246
Subdivisions in Laconia
- Apple Ridge
- Brickyard Resort
- Four Seasons
- Four Seasons Condominium Recreation Association
- Governor’s Crossing
- Governors Crossing
- Havens At The Summit
- Lady of the Lake Estates
- Lady of the Lakes Estates
- Langley Cove
- Lilac Valley
- Long Bay
- Long Bay / Willow Pond
- Long Bay Association
- Lookout
- Meredith Bay
- Meredith Bay/ Akwa Vista
- Paugus Bay View
- Quail Ridge
- South Down Shores
- Stonecrest Condo
- The Village at Winni
- Village At Winnipesaukee
- White Oaks Preserve
Market Summary
Property Summary
- UNIT 49 STONEWALL CORNERS Way Laconia NH is a Condo for sale in Laconia, NH, 03246. It is listed for $499,900 and features 2 beds, 3 baths, and has approximately 1,400 square feet of living space.The current price per square foot is $357. The average price per square foot for Condo listings in Laconia is $355. The average listing price for Condo in Laconia is $556,322. To schedule a showing of MLS#5065006 at UNIT 49 STONEWALL CORNERS Way in Laconia, NH, contact your EXP Realty of NH – Scott A. Buitta agent at cell 603-602-1400 / Office 888-398-7062 ext 253.
Similar Listings Nearby

UNIT 49 STONEWALL CORNERS Way
Laconia, NH
